2125 Addison WayCullman, AL
Due to the health concerns created by Coronavirus we are offering personal 1-1 online video walkthough tours where possible.




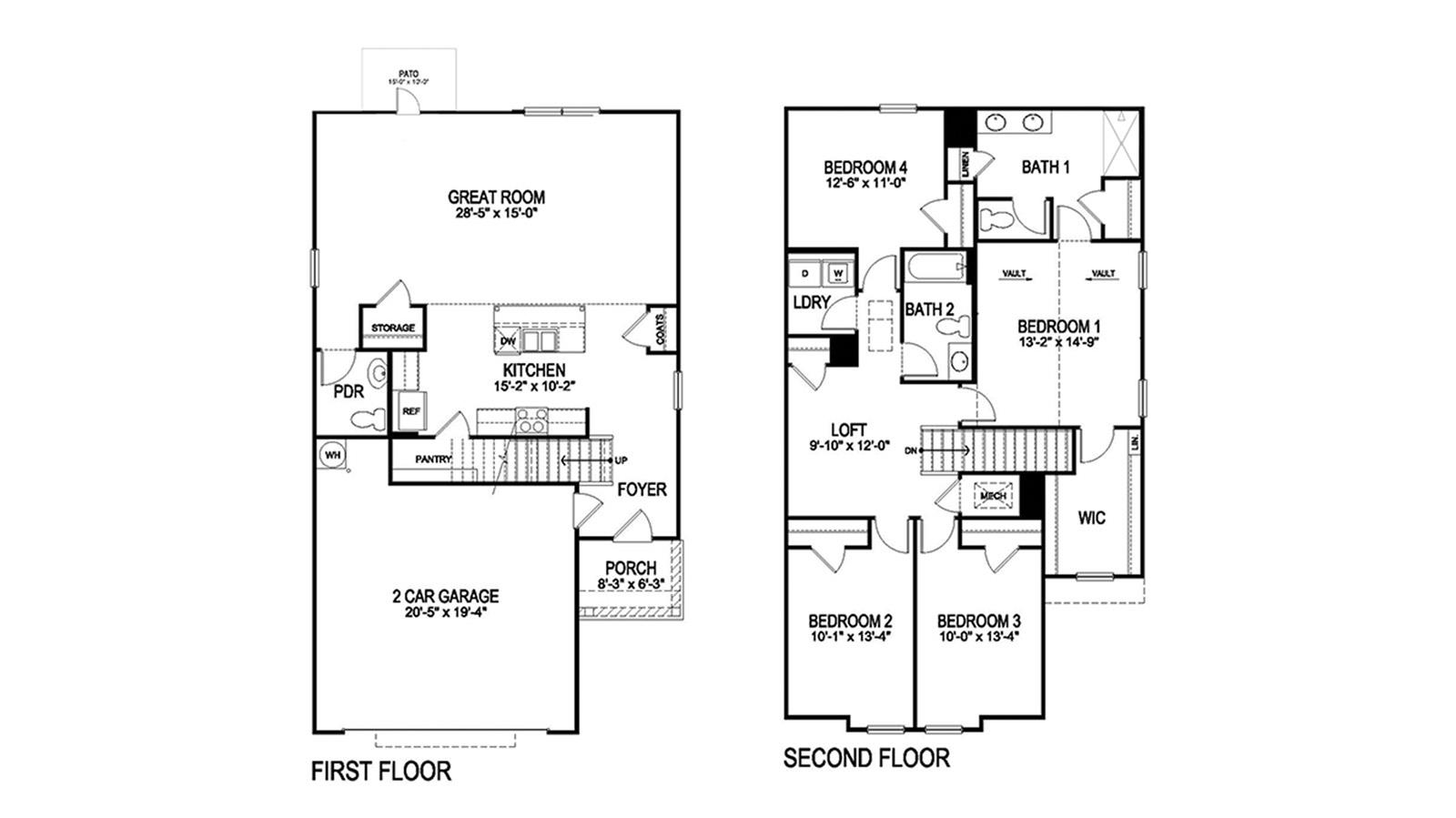
CITY SCHOOL DISTRICT The Elston boasts a two-story layout, comprising 4 bedrooms and 2.5 bathrooms within 2174 square feet. The open-concept kitchen includes a spacious island for added seating, a generous pantry, and flows into a sizable living room. Completing the main level are a powder room, coat closet, and extra storage space. The second level features Bedroom One with a vaulted ceiling and an opulent bathroom equipped with a walk-in shower, private water closet, double vanities, and a roomy walk-in closet. Additionally, there are 3 more bedrooms, a full bathroom, a walk-in laundry room, and a loft-style living room on the second level. Furthermore, the home comes with a one-year builder's warranty. Notably, your new home is equipped with our smart home technology package.
| a month ago | Listing updated with changes from the MLS® | |
| a month ago | Listing first seen on site |
IDX information is provided exclusively for consumers’ personal, non-commercial use, and may not be used for any purpose other than to identify prospective properties consumers may be interested in purchasing.This data is deemed reliable but is not guaranteed accurate by the MLS. Source: Cullman Association of Realtors MLS

Did you know? You can invite friends and family to your search. They can join your search, rate and discuss listings with you.