160 Co Rd 681Cullman, AL 35055
Due to the health concerns created by Coronavirus we are offering personal 1-1 online video walkthough tours where possible.




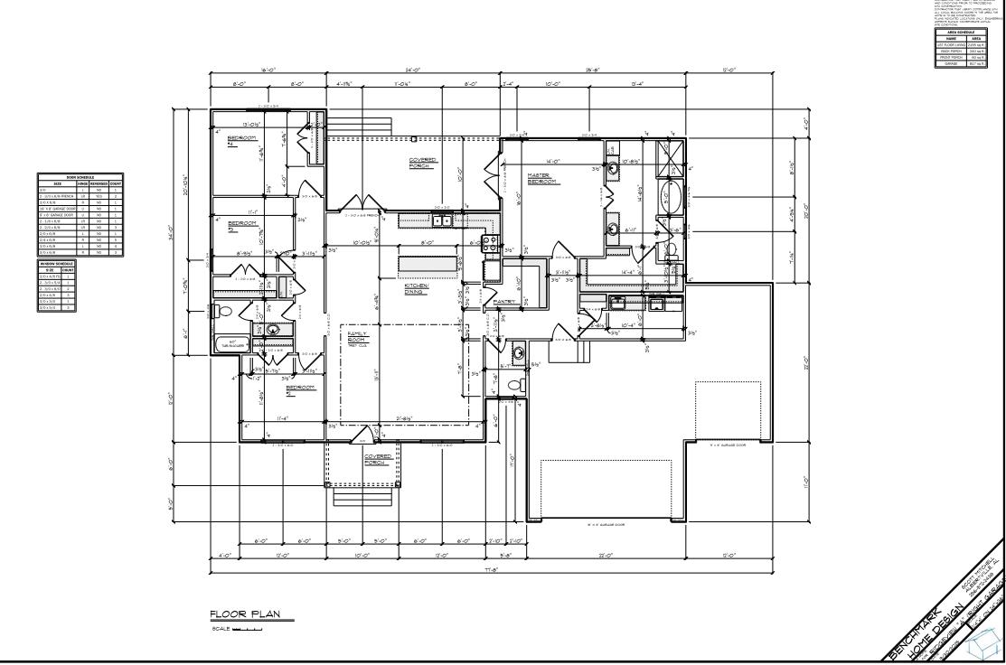
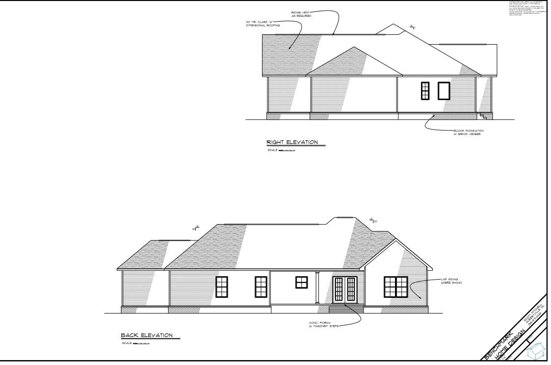
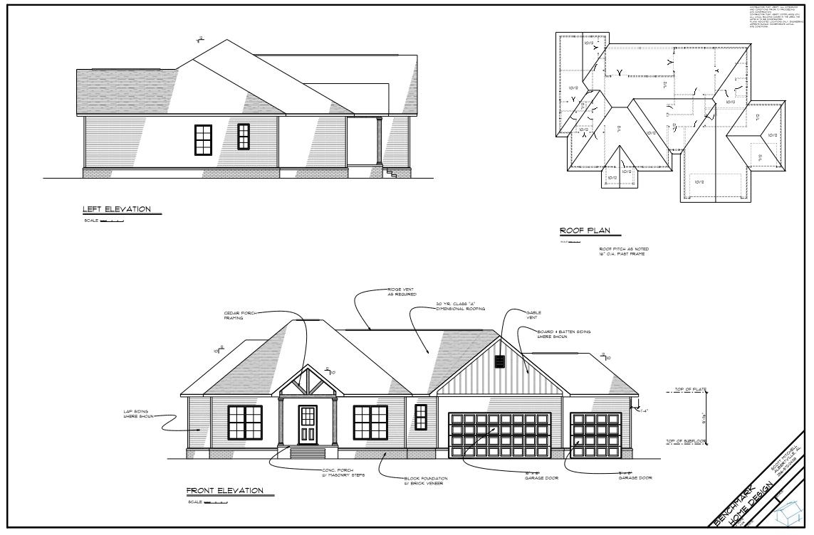
Pre-construction opportunity in North Alabama. This 4-bedroom, 2.5-bath home features a split-bedroom layout and open concept living. Conveniently located with easy access to Huntsville, Cullman, and Birmingham. The primary suite includes a large walk-in closet, dual vanities, soaking tub, and separate shower. Three additional bedrooms share a full bath on the opposite side of the home. The main living area offers an open-concept family room connected to the dining and kitchen spaces for functional everyday living. Exterior features include all-brick construction, a covered front porch, and three-car garage with direct access to the utility room. Buyers may be able to make certain custom selections depending on the time of contract and stage of construction. Photos, renderings and floor plans are for illustrative purposes only. Final home appearance, materials and layout may vary based on construction, lot and buyer selections. Buyer to verify all items of importance
| 6 days ago | Listing updated with changes from the MLS® | |
| 6 days ago | Listing first seen on site |
IDX information is provided exclusively for consumers’ personal, non-commercial use, and may not be used for any purpose other than to identify prospective properties consumers may be interested in purchasing.This data is deemed reliable but is not guaranteed accurate by the MLS. Source: Cullman Association of Realtors MLS

Did you know? You can invite friends and family to your search. They can join your search, rate and discuss listings with you.